Residential complex of MCR. Sports


Listing ID:33
Type:Sell
Property type:apartment house
Address:Sports MCR
Price:Price on asking
Description:

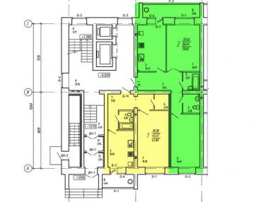
The neighborhood "Sportivny" is a modern complex building, within the framework of which the construction of various brick buildings of variable number of floors is carried out.

The developer designed one-, two- and three-bedroom apartments. Finishing works are not carried out.

Landscaping of the adjacent territory includes the organization of children's and sports grounds, recreation areas and landscaping. There are open guest parking spaces. The first floors of the buildings are allocated for the placement of public facilities, shops and offices. Within walking distance are kindergartens, schools, medical institutions, shops.

Total number of floors:10

Loan calculator

Monthly payment: $

Overpayment: $





There are no comments yet

General information
    • Apartment house
  • Price on asking
Listing was posted by
Kassim Abdela

Is it your listing?

Would you like to sell  quicker?

apply paid services

Apartments (2)

Sell
Kassim Abdela

Address
$ 63 436
  • Number of bedrooms 3
  • Floor/Total number of floors 7/10
  • Square 95 m2
Sell
Kassim Abdela

Address
$ 44 122
  • Number of bedrooms 2
  • Floor/Total number of floors 2/10
  • Square 66.2 m2